Residents are ‘relieved’ that an appeal for a Waunfawr housing development has been refused.
In 2022 developers applied to build five houses on a field east of Maesceinion, bulldozing an existing house to create a new access road.
In 2023 a second application was withdrawn and developers appealed to Welsh Government
This May the appeal was dismissed, upholding Ceredigion County Council’s rejection citing “piecemeal development” as the main issue.
Andrew Campbell, a Maesceinion resident who spoke at the appeal hearing in January, voiced community concerns over road safety in the tight space of new road, Welsh Water’s capacity to add more housing to the existing drainage system, and a protected rare funghi species found on the site.

The Aberystwyth University law professor said: “The community response is very, very positive, I don’t know anyone locally who supported the plan.
“The inspector referenced the rare funghi found at the site but rejected the appeal on other grounds.
“They also didn’t place a huge emphasis on the road safety issue we were very concerned about, however it’s been rejected so we are happy regardless of the grounds.
“I suspect the developers will try again perhaps with a site entrance elsewhere.”
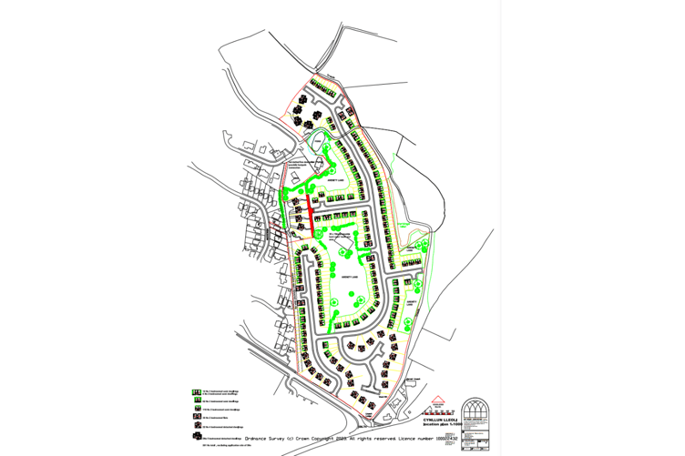
The 0.5-hectare site is part of a larger 9.49-hectare field, where developers want to build 261 houses.

Ceredigion’s Local Development Plan had marked the site as the ‘largest allocation exclusively for housing’, described as ‘an important element in the sustainable spatial strategy for Aberystwyth’, and recognised in the Future Wales National Plan as an area of growth, contributing to meeting housing need.
Initial plans were rejected after 40-plus objections were submitted by residents, citing, amongst other concerns, noise pollution, impact on wildlife, loss of privacy and the impact on neighbouring properties. A secondary application in 2023 was then withdrawn, with an email from consultants JMS Planning stating they were “disappointed not to reach a positive outcome to allow the delivery of houses”, adding that “as the department is unwilling to support the application and the local member has not shown a willingness to bring it before the planning committee we will withdraw the application”.
An inspector rejected the latest appeal, stating: “I do not consider the appeal scheme delivers the optimum development of the site.
“I conclude that the proposal would represent undesirable piecemeal development... development should reflect a clear understanding of the local physical, social, economic and environmental context.”





Comments
This article has no comments yet. Be the first to leave a comment.